pic

Противопожарный витраж 2 типа / серия FRM7192

Артикул: eac26335a201
5.00/5

20 450 

В наличии, доставим бесплатно
Самовывоз – бесплатно
Монтаж доступен – от 3 500 ₽

Доставка по Рыбинску

Стоимость доставки по Рыбинску – бесплатно
подробнее

Способы оплаты

Оплата по счету для юр.лиц(работаем с НДС), картами или онлайн-переводом
все способы оплаты

Монтаж конструкций

Монтаж "под ключ" от 2 500 руб/м² . Имеем лицензию МЧС на проведение монтажных работ огнестойких конструкций.

Требуется консультация?

Поможем с подбором конструкций и подготовим коммерческое предложение в течении 40 минут.
Открыть чат с менеджером →

Примеры реализованных проектов

Противопожарный витраж 2 типа / серия FRM7192

Вкратце про изделие

Противопожарный витраж 2 типа серии FRM7192 от Fire-Max представляет собой высокоэффективное решение для современных коммерческих и административных объектов. Экономическая целесообразность данной конструкции основывается на оптимальном соотношении первоначальных затрат и долгосрочных выгод от эксплуатации. Стоимость квадратного метра витража составляет от 28 000 до 32 000 рублей, что на 15-20% ниже импортных аналогов при идентичных технических характеристиках. Собственное производство позволяет минимизировать логистические расходы и таможенные платежи, обеспечивая конкурентоспособную ценовую политику.

Экономические преимущества и окупаемость

Инвестиции в противопожарные витражи FRM7192 окупаются за 7-9 лет благодаря снижению страховых взносов и эксплуатационных расходов. Страховые компании предоставляют скидки до 25% на полисы имущественного страхования при установке сертифицированных противопожарных конструкций. ROI составляет 12-15% годовых с учетом экономии на отоплении благодаря улучшенным теплотехническим характеристикам. Дополнительная экономия достигается за счет увеличения арендной стоимости помещений с современными системами безопасности на 8-12%.

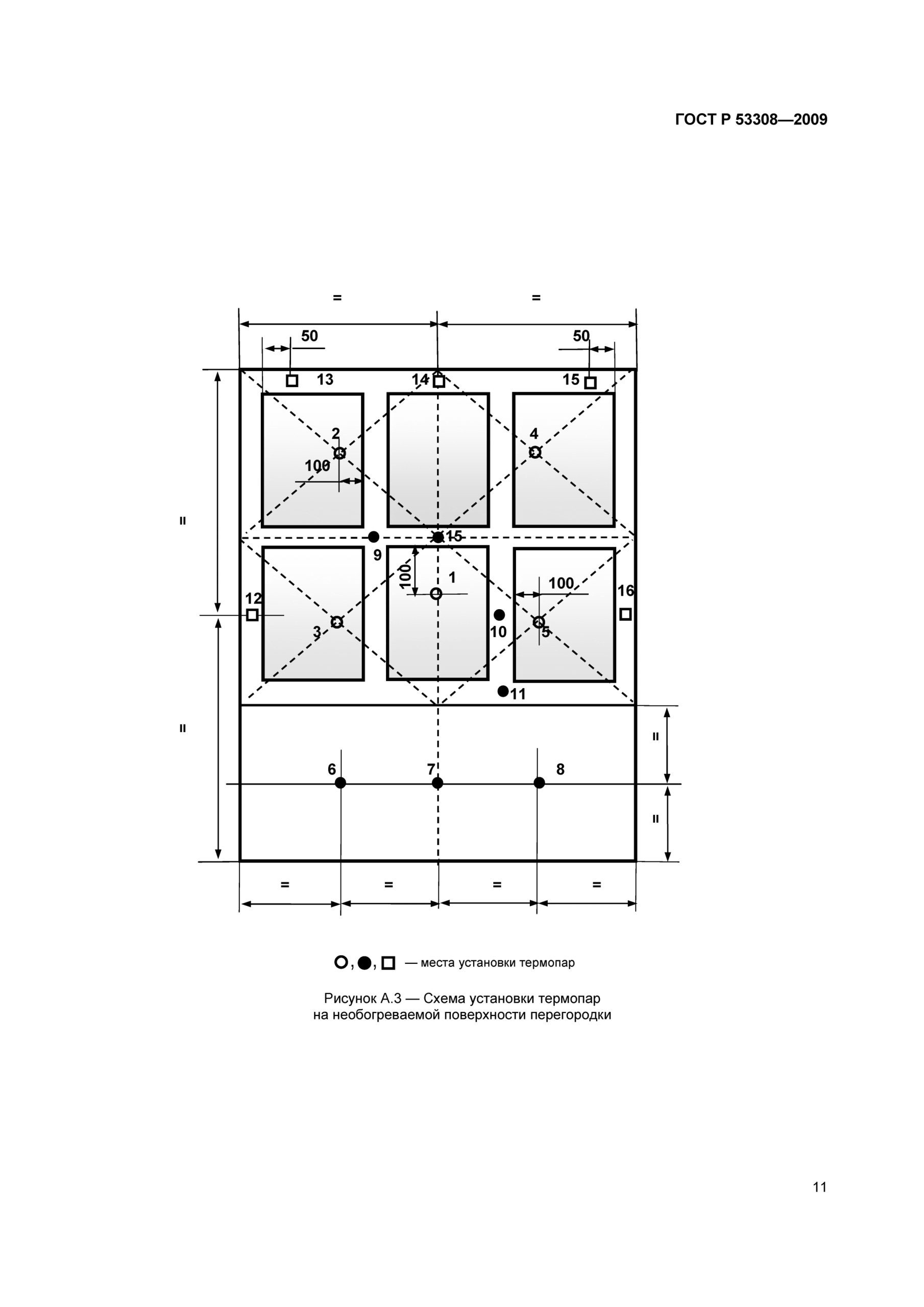
Согласно ГОСТ Р 53308-2009 «Конструкции строительные. Светопрозрачные ограждающие конструкции и заполнения проемов», противопожарные витражи должны обеспечивать нормируемые показатели огнестойкости и энергоэффективности.

Сравнительный анализ затрат

Параметр FRM7192 Импортный аналог Экономия
Стоимость за м² 30 000 руб. 38 000 руб. 8 000 руб.
Установка 4 500 руб. 6 200 руб. 1 700 руб.
Годовое обслуживание 1 200 руб. 1 800 руб. 600 руб.
Гарантийный срок 10 лет 7 лет 3 года

Сравнительный анализ показывает значительные преимущества отечественной продукции Fire-Max перед зарубежными конкурентами. Экономия на начальном этапе составляет 9 700 рублей на квадратный метр, что при средней площади остекления 50 м² дает экономию 485 000 рублей. Расширенная гарантия на 3 года дополнительно снижает риски незапланированных расходов на ремонт и замену элементов конструкции. Локальное производство гарантирует быструю поставку запчастей и сервисное обслуживание, что минимизирует простои и связанные с ними убытки.

Допустимые размеры конструкции

Тип открывания Ширина, мм Высота, мм Максимальная площадь, м²
Глухая створка 800-2200 600-2800 6.16
Поворотная створка 600-1800 800-2400 4.32
Откидная створка 600-1600 400-1200 1.92

Снижение эксплуатационных расходов

Современные уплотнительные системы и многокамерные профили обеспечивают снижение теплопотерь на 35-40% по сравнению с обычными алюминиевыми конструкциями. Это приводит к экономии на отоплении от 15 000 до 25 000 рублей в год для типового офисного помещения площадью 100 м². Автоматические системы дымоудаления интегрированы в конструкцию витража, что исключает необходимость установки дополнительного оборудования стоимостью 150 000-200 000 рублей. Минимальные требования к техническому обслуживанию позволяют сократить эксплуатационные расходы на 30% по сравнению с более сложными системами.

Долговечность алюминиевых профилей с полимерным покрытием составляет не менее 50 лет, что значительно превышает срок службы стальных аналогов. Коррозионная стойкость материалов исключает необходимость регулярной покраски и ремонта, экономя до 5 000 рублей на квадратный метр за весь жизненный цикл. Противопожарные витражи серии FRM7192 сочетаются с другими элементами противопожарных систем, обеспечивая комплексную защиту объекта.

Стоимость владения и финансовые решения

Общая стоимость владения TCO на протяжении 25 лет составляет 45 000 рублей на квадратный метр, включая первоначальные затраты, монтаж, обслуживание и энергопотребление. Для сравнения, аналогичный показатель для импортных систем достигает 62 000 рублей, что на 38% выше отечественного решения. Fire-Max предлагает гибкие схемы финансирования, включая рассрочку платежа до 24 месяцев и лизинговые программы с удорожанием всего 8-10% годовых. Партнерство с ведущими банками позволяет получить кредитное финансирование под 12-14% годовых для юридических лиц.

  • Экономия на страховых взносах: 15-25% от стоимости полиса
  • Снижение затрат на отопление: 35-40% по сравнению с обычными конструкциями
  • Увеличение арендной стоимости: 8-12% за счет повышения класса безопасности
  • Минимальные эксплуатационные расходы: 1 200 рублей в год на м²
  • Длительный срок службы: более 50 лет без капитального ремонта

В соответствии с СНиП 21-01-97 «Пожарная безопасность зданий и сооружений», применение противопожарных витражей обязательно для зданий высотой более 28 метров и объектов с массовым пребыванием людей.

Экономическая эффективность противопожарных витражей FRM7192 подтверждается опытом более 3000 реализованных объектов по всей России. Средняя экономия заказчиков составляет 1,2-1,8 млн рублей на типовый административный комплекс благодаря комплексному подходу к проектированию и оптимизации технических решений. Собственное производство и сертифицированная система качества гарантируют стабильность характеристик продукции и соответствие требованиям ГОСТ Р и МЧС России.

Доставка по Рыбинску

 Стоимость доставки. Сроки  При заказе до.
 Бесплатно  15 дн.  до 12 ч.

Доставка по России и в отдаленные регионы

 Стоимость доставки. Сроки  При заказе до.
 Бесплатно  15 дн.  до 12 ч.

Детали

Огнестойкость

EI 15, EI 30, EI 45, EI 60

Профиль

Schuco

Размеры

Любые под заказ

Стекло

противопожарное

Цвет

Любой по RAL

1 отзыв на Противопожарный витраж 2 типа / серия FRM7192

5,0
На основании 1 отзыва
5 звёзд
100
100%
4 звезды
0%
3 звезды
0%
2 звезды
0%
1 звезда
0%
  1. Ирина

    Витраж замечательный, смотрится очень красиво, еще и надежный, огнестойкий. Что еще надо?

Добавить отзыв
Выберите свой регион
Запросить коммерческое предложение
Оформление заказа

Заполните форму заказа и мы свяжемся с вами в течение 15 минут в рабочее время.

Нажимая кнопку «Отправить заказ», вы соглашаетесь на обработку персональных данных и с условиями Политикой конфиденциальности.